
Cửa nhôm xingfa hệ 55 liên doanh
Liên hệ
Nhôm Xingfa hệ 55 liên doanh là gì?
Thật ra, đây chỉ là một trong những hệ nhôm nằm trong các thanh profile nhôm Xingfa liên doanh. Hệ nhôm này có độ dày từ 1.4 – 2.0 mm cùng các thiết kế bên trong khoang trống có nhiều đường gân sole nhau với tác dụng chịu lực giúp toàn bộ khối cửa cứng cáp, vững chắc và chịu sức ép, va đập cực lớn mà vẫn giữ nguyên hình khối kích thước như lúc ban đầu. Đảm bảo được tính thẩm mỹ rất đẹp cho thanh profile nhôm xingfa .
Bản vẽ kỹ thuật nhôm xingfa hệ 55:
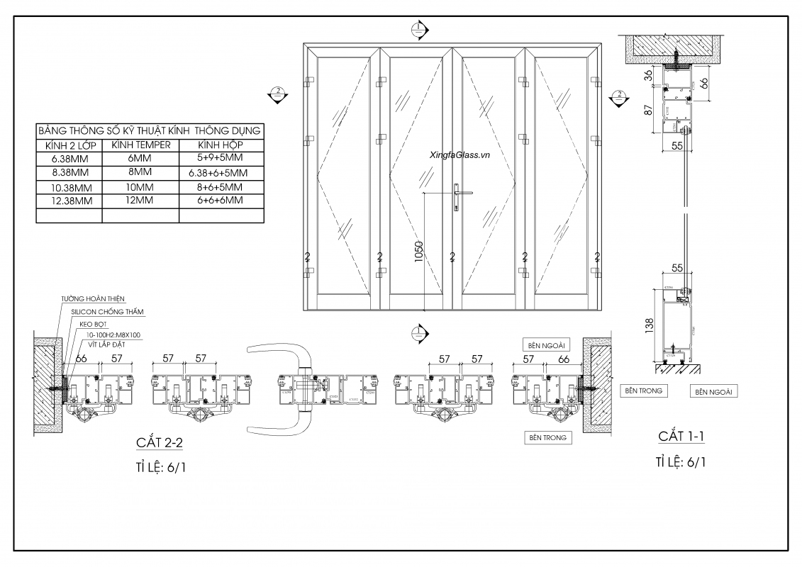
BẢN VẼ KỸ THUẬT CỬA ĐI MỞ QUAY 4 CÁNH NHÔM XINGFA HỆ 55
BẢN VẼ KỸ THUẬT CỬA ĐI MỞ QUAY 1 CÁNH NHÔM XINGFA HỆ 55
BẢN VẼ KỸ THUẬT CỬA SỔ MỞ QUAY NHÔM XINGFA HỆ 55
BẢN VẼ KỸ THUẬT CỬA SỔ MỞ QUAY NHÔM XINGFA HỆ 55
Thông số kỹ thuật nhôm hệ 55
-
Độ dày: 1.4 – 2.0 mm (tùy thuộc vào từng mẫu thiết kế cửa).
-
Màu sắc: Trắng sứ, vân gỗ,…
-
Kích thước: Phụ thuộc vào kích thước thực tế của từng bộ cửa.
-
Kính: Kính phôi Việt – Nhật của Hải Long với độ dày từ 6.38 – 23.76mm.
-
Phụ kiện: Hệ phụ kiện kim khí Kinlong cao cấp nhập khẩu.
-
Keo: Keo Dowcorning Eurowindow chịu nước 100%.
-
Keo ép góc: PU88 nhập khẩu nguyên liệu Mỹ.
-
Gioăng kép: EDPM chất lượng cao.
-
Bảo hành: Bảo hành chính hãng 3 năm.
Mặt cắt nhôm xingfa hệ 55
Mọi thắc mắc của quý khách hàng về bất kỳ vấn đề gì về dịch vụ Cửa nhôm hệ xingfa giá rẻ tại Lào Cai có thể gửi vào hòm thư của nhadeplaocai.com tại địa chỉ: nhadepminhtam@gmail.com
Liên hệ tư vấn và đặt hàng:
Nhà đẹp Lào Cai
Hotline: 0214 628 5555
Địa chỉ tại Lào Cai: Sn 050, Đ. Võ Nguyên Giáp,, KĐT Bitexco, Bắc Cường, Tp. Lào Cai
Gmail: nhadepminhtam@gmail.com
website: nhadeplaocai.com