Mẫu thiết kế xây dựng nội thất nhà phố tân cổ điển 6x12m tại Lào Cai
Liên hệ
Nhà đẹp Minh Tâm chuyên thiết kế nội thất nhà phố tân cổ điển uy tín tại Lào Cai Sa Pa. Mẫu nhà tân cổ điển tại Lào Cai được thiết kế nội thất đẹp rạng ngời, mang những giá trị thẫm mỹ, hợp lý và thuyết phục
Nhà đẹp Minh Tâm gửi các bạn tham khảo mẫu thiết kế xây dựng nội thất nhà phố tân cổ điển 6x15m tại Lào Cai đẹp rạng ngời
Bản thân mỗi công trình thiết kế nội thất tân cổ điển đã mang những giá trị thẫm mỹ tự nó, hợp lý và thuyết phục, chứ không khiên cưỡng, gượng ép, điều này cũng có vẻ đúng với mẫu thiết kế nhà phố tân cổ điển dưới đây.
Các kiến trúc sư trẻ của nội thất Minh Tâm Lào Cai nhận được dự án này trong một lần tình cờ lướt trên các diễn đàn về kiến trúc nội thất. Nhận thấy ước muốn gia chủ cũng trùng hợp với hướng đi mà công ty đang xây dựng, nên ngay lập tức kiến trúc sư đã liên hệ chủ đầu tư để xác nhận.
Vậy tiếp theo câu chuyện gặp gỡ sẽ diễn ra như thế nào và công trình thiết kế nội thất nhà phố tân cổ điển Pháp sẽ hình thành ra sao? Để giải đáp thắc mắc đó mời bạn cùng chúng tôi đọc tiếp nội dung bài viết dưới đây nhé!
Phối cảnh kiến trúc nhà phố tân cổ điển 6x12m 3 tầng:

Thiết kế thi công nội thất nhà phố tại Lào Cai Sapa
Qua quá trình trao đổi, nhận thấy chủ nhà là người hiền hòa, nhẹ nhàng thích hợp cho những không gian trầm lắng, thư giãn như tân cổ điển nên kiến trúc sư đã mạnh dạn đề xuất phương án này cho chủ nhà.
Một khoảng đường đi phía trước được xây rộng để làm bãi đậu xe, khoảng lộ giới sẽ được ốp gạch đảm bảo sự sạch sẽ.
Lối vào ngôi nhà tân cổ điển đẹp được thiết kế chia làm hai lớp một lớp cửa cuốn chắc chắn, đảm bảo an toàn cho người và của bên trong. Lớp thứ 2 là cửa kính khung nhôm, nhằm lấy sáng và không khí cho khu vực bên trong. Đây được xem là xu hướng xây dựng hiện đại, được khá nhiều gia đình áp dụng.
Hai chiếc trụ đá hai bên, tăng vẻ bề thế và sang trọng cho không gian nhà phố 3 tầng.

Thiết kế kiến trúc nội thất nhà phố 3 tầng tại Lào Cai theo phong cách tân cổ điển
Trên tầng 2 và 3, ban công cùng lan can làm bằng hoa văn sắt mỹ nghệ uốn lượn tinh xảo, tăng vẻ sắc nét và đặc sắc cho công trình. Đèn tường bố trí ở trung tâm để giúp căn nhà phố thêm nổi bật, nhất là vào ban đêm.
Hoa văn và phù điêu mềm mại, được làm hoàn toàn bằng tay cho thấy mức độ chịu chi cùng gu thẫm mỹ tinh tế của người sở hữu.
Bố trí công năng thiết kế nội thất nhà phố tân cổ điển tại Lào cai:
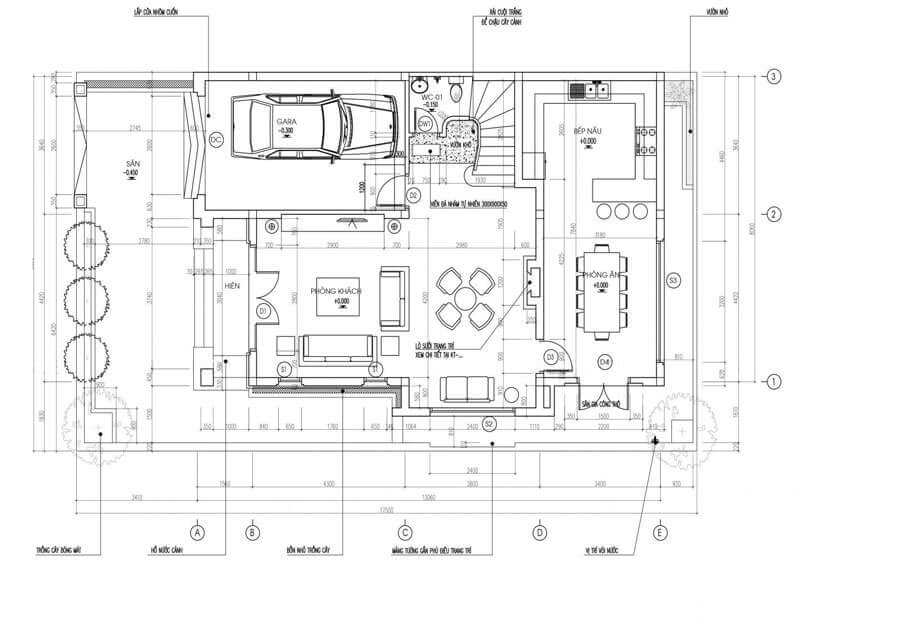
Thiết kế mặt bằng nội thất tầng trệt nhà phố kiểu tân cổ điển

Thiết kế mặt bằng công năng nội thất tầng 1 ngôi nhà
Tầng trệt gồm: Nhà xe, phòng khách, phòng ăn, nhà bếp
- Một nhà xe bố trí ngay cạnh lối vào để gia chủ sắp xếp các loại xe và phương tiện đi lại.
- Phòng khách rộng với đồ nội thất sắp xếp cân đối, hài hòa để chủ nhà có thể tiếp đãi bạn bè, người thân.
- Bếp nấu cùng phòng ăn nằm ngay phía sau thuận tiện cho việc sinh hoạt hàng ngày.
Thiết kế mặt bằng nội thất tầng 2 nhà phố tân cổ điển tại Lào Cai
tầng 2 được thiết kế gồm: Phòng sinh hoạt chung, phòng ngủ master, phòng ngủ con trai, phòng ngủ con gái
- Một phòng sinh hoạt chung đặt bên phải cầu thang đi lên lầu 1 để cả gia đình trò chuyện, tâm tình.
- Tiếp đến là phòng ngủ master rộng 30m2, có giường ngủ, khu vực thay đồ và nhà tắm riêng biệt.
- Phòng ngủ con trai cùng phòng ngủ con gái đặt bên cạnh để tiện cho việc chăm sóc của bố mẹ. Hai phòng có nhà vệ sinh riêng để các bé tự lập trong sinh hoạt.
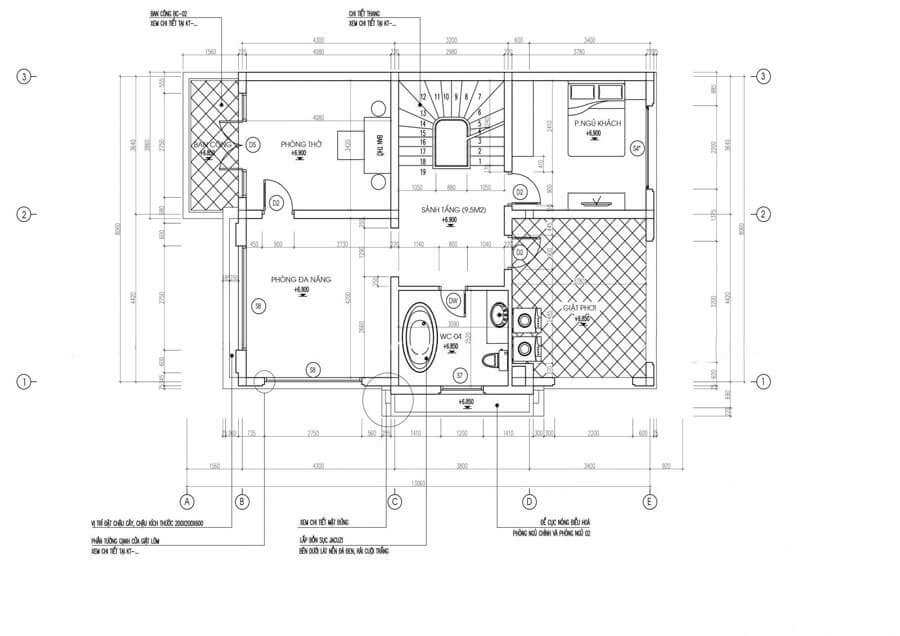
Thiết kế nội thất tầng 3 nhà phố tân cổ điển tại Lào Cai

thiết kế nội thất tầng 3 gồm: Phòng thờ, phòng đa năng, phòng ngủ khách, khu giặt phơi
- Như bao gia đình người việt khác, phong tục thờ cúng tổ tiên được gia chủ hết sức chú ý. Vậy nên kiến trúc sư đã đặt một phòng thờ trên lầu 2 để các thành viên tưởng nhớ về nguồn cội.
- Một phòng đa năng dành cho gia chủ xem phim, hát karaoke hay tụ tập bạn bè.
- Phòng ngủ dành cho khách được đặt trên lầu 2 để khách thấy riêng tư và thoải mái khi nghỉ lại.
- Phòng giặt phơi được xử lý kỹ về chống thấm, đảm bảo chất lượng công trình.
Không gian Thiết kế nội thất nhà phố tân cổ điển 6x12m tại Lào Cai sang trọng đẳng cấp

Thiết kế thi công nội thất tầng 1 nhà phố tân cổ điển tại Lào Cai sang trọng đẳng cấp
Bước vào không gian bên trong các kiến trúc, đường nét, họa tiết đều được sắp xếp cân đối và hợp lý.

nội thất phòng khách tân cổ điển tại Lào Cai
Thiết kế nội thất phòng khách đẹp từ trong ra ngoài mang đến sự thanh lịch vượt thời gian cho nhà phố tân cổ điển

phòng khách nội thất tân cổ điển sang trọng tại Lào Cai
Bộ bàn ghế sofa bọc nệm dày dặn, để cả khách và chủ có thể thoải mái chuyện trò.
Chúng tôi xin đưa ra những bước quy trình làm việc đối với dịch vụ Công ty Nội thất Minh Tâm Lào Cai cụ thể qua các bước để tất cả khách hàng hoàn toàn có thể yên tâm theo dõi
Bước 1: Đón nhận thông tin từ khách hàng và khảo sát thực tế mặt bằng cần thiết kế nội thất
– Chúng tôi sẽ chủ động liên lạc trực tiếp cho bạn sớm nhất
– Chúng tôi sẽ tư vấn, đón nhận những yêu cầu và hẹn lịch làm việc cụ thể với quý khách hàng.
– Đội ngũ các KTS chúng tôi sẽ tư vấn ý tưởng và thuyết trình ý tưởng sử dụng nội thất theo bản vẽ thiết kế cho khách hàng
Bước 2: Bóc tách khối lượng công việc, lập dự toán báo giá với khách hàng các hạng mục thiết kế thi công nội thất
– Tiến hành lập dự toán xây dựng
– Gửi báo giá xây dựng cụ thể đến kháng hàng
Bước 3: Bàn bạc và cùng ký kết hợp đồng thi công nội thất
– Nếu khách hàng duyệt báo giá thì phòng dự án soạn thảo hợp đồng, thương lượng các điều kiện yêu cầu cụ thể với khách hàng trong hợp đồng
– Công ty tiến hành ký kết hợp đồng với khách hàng
Bước 4: Tiến hành làm việc theo những gì đã kí kết trong hợp đồng
– Chuẩn bị nên kế hoạch, vật tư, máy thi công phục vụ cho công trình
– Thực hiện thi công công trình theo từng bước hạng mục đã ký trong hợp đồng
– Bố trí các Ký sư liên tục có mặt giám sát thi công xây dựng công trình
Bước 5: Nghiệm thu công trình, thanh lý hợp đồng, bảo hành công trình
– Làm hồ sơ bản vẽ hoàn công công trình. Biên bản nghiệm thu bàn giao công trình
– Thanh lý hợp đồng theo đúng các nội dung đã ký kết
– Thực hiện bảo hành công trình theo thời gian quy định.
Biết được tầm quan trọng của việc thi công nội thất Nhà Đẹp Minh Tâm đã đưa ra các phương án từ tổng thể đến chi tiết. Các KTS, kĩ sư của chúng tôi sẽ làm việc hết mình để tạo một môi trường làm việc thật chuyên nghiệp và hợp lý. Từ những gì nhỏ nhất cho đến những thứ lớn hơn chúng tôi đều có những phương án giải quyết khác nhau đáp ứng mọi mặt về thẩm mĩ . Tất cả sẽ tạo ra một không gian nội thất có độ sắc nét và bền đẹp sáng tạo và thích hợp với không gian.
Bạn đang lên kế hoạch với một dự định thiết kế thi công nội thất tại Lào Cai, tìm cho ngôi nhà của mình một đơn vị uy tín và chất lượng nhất? Bạn đang tìm hiểu về các loại vật liệu nên sử dụng hiện nay?
Hãy liên hệ ngay với Nội thất Minh Tâm Lào Cai để cùng đồng hành và trải nghiệm về dịch vụ của Công ty chuyên thi công nội thất tại Lào Cai giá cạnh tranh. Cùng chúng tôi mang lại sự đổi mới cho không gian nội thất các dự án của bạn.
NHÀ ĐẸP MINH TÂM LÀO CAI
Tư vấn - thiết kế - thi công nội thất
Hotline: 0214 628 5555 or 09 1889 3998
Địa Chỉ: Lô 05 Liền kề 21, Kđt Symphony, Đại lộ Võ Nguyên Giáp, P.Bắc Cường, Lào Cai
Fanpage: nội thất Minh Tâm Lào Cai





