Thiết kế thi công nhà phố hiện đại 6x18m thoáng sáng
Liên hệ
Giống như phần lớn các ngôi nhà phố tại Việt Nam, vấn đề mà cả gia chủ và kiến trúc sư quan tâm khi thiết kế nhà phố hiện đại 6x18m là làm sao lấy được ánh sáng và gió tự nhiên.
Từ thực tế đó, qua quá trình khảo sát hiện trạng khu đất cộng với kinh nghiệm trong quá trình thiết kế thi công nhiều ngôi nhà phố trên khắp mọi miền đất nước, giải pháp kiến trúc sư đưa ra đó là thiết kế nhà phố 3 tầng mặt tiền 6m tận dụng chiều dài dành cho sân trước và sân sau, dùng làm vườn. Để hiểu rõ chi tiết cách làm của các kiến trúc sư mời bạn cùng đọc tiếp nội dung bài viết dưới đây nhé!
Phối cảnh ngoại thất nhà phố hiện đại 6x18m :

Mỗi khi thiết kế một công trình các kiến trúc sư đều dành rất nhiều thời gian để tìm hiểu nhu cầu thực tế của chủ nhà. Nhận thấy gia chủ vốn là người thích sống cuộc sống tĩnh lặng, yêu cây cối và thiên nhiên nên người thiết kế đã dành rất nhiều khoảng trống giống như khoảng “thở”cho công trình.
Nền đất cứng chắc, kiến trúc sư nhanh chóng quyết định phương án thi công mẫu nhà phố đẹp móng băng, để chịu lực công trình, từ đó có thể tiết kiệm thời gian cũng như chi phí thi công.
Với mặt tiền đủ thoáng và rộng, kiến trúc sư cũng có dư điều kiện để có thể hoàn thiện mặt bằng mẫu nhà 3 tầng theo cách khoa học. Việc xử lý kết cấu cũng như những họa tiết trang trí được đặt hướng Nam để đón nắng và gió.

Một điểm nhấn khác tạo nên sự đặc biệt cho nhà phố hiện đại 6x18m chính là hình khối hình hộp, khối đua ra hơn với tường, ôm trọn bức tường kính để tránh cho nắng tạt và mưa hắt trực tiếp vào bên trong.
Màu sơn tường đặc trưng mà gia chủ chọn cho công trình là sơn màu trắng, trên nền trắng ấy màu sắc của lam gỗ, cây xanh, đèn tường càng trở nên nổi bật và bắt mắt hơn.
Khối lam gỗ trên tầng thượng được thiết kế khá độc đáo, vừa đảm nhận vai trò đón sáng vừa giúp cân chỉnh hình khối chung của toàn bộ không gian thiết kế. Mặt tiền các khối tường được ốp lam nhựa giả gỗ, hệ thống đèn led âm trần cùng với những lam nhôm thiết kế chạy dọc trước mặt tiền công trình, một sức sống tràn trề và tràn ngập hương sắc.
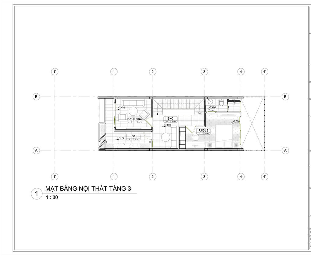
Mặt bằng công năng nhà phố hiện đại 6x18m 3 tầng:
Mục tiêu của kiến trúc sư khi thiết kế ngôi nhà phố này là mang đến những góc nhìn mới, cải thiện sự hài lòng của khách hàng, cân bằng với các cảm nhận và nhu cầu của đời sống hiện đại, do đó quá trình thiết kế cũng là sự lắng nghe tâm tư và nguyện vọng của các thành viên trong gia đình mang đến một không gian lưu trú có thiết kế độc đáo.

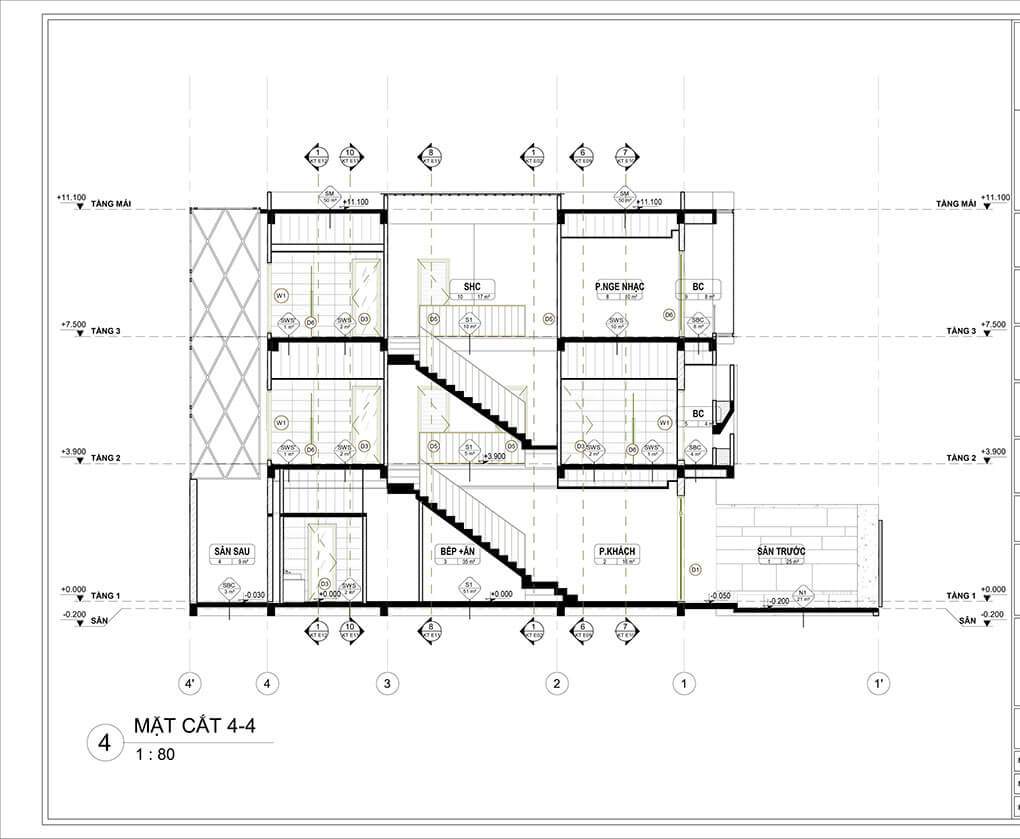
Với lợi thế về chiều dài nên kiến trúc sư chừa cho nhà 3 tầng một khoảng sân trước và sân sau rộng 3m và 1,5m để lấy sáng. Ở giữa lần lượt là nơi tiếp khách, khu vực ăn uống và bếp nấu.

Tầng 2 gồm phòng ngủ 1 và phòng ngủ 2 nằm diện qua cầu thang thông tầng.

Tại tầng 3, kiến trúc sư sắp xếp một phòng sinh hoạt chung đặt ở giữa tầng làm nơi hội họp, tâm tình. Cạnh đó là phòng ngủ thứ 3 có nhà vệ sinh khép kín. Phòng nghe nhạc hướng ra khoảng ban công bên ngoài mang đến những giây phút thư giãn thực sự cho gia chủ.
Mặt cắt bố trí tổng thể 3 tầng của ngôi nhà phố

Bố trí nội thất nhà phố hiện đại 6x18m đẹp:

Bước vào sau cánh cửa là khoảng sân trước yên bình có đầy đủ cây cối và hồ nước chào đón các thành viên trong gia đình trở về.

Cánh cửa trượt bằng kính giúp đón sáng, đón thoáng cùng sự xuất hiện của những chậu tiểu cảnh xanh, dự báo một cuộc sống hiện đại, tinh tế đầy tiện nghi ở bên trong.

Phòng khách ghi điểm nhờ lối bài trí cân bằng và ánh sáng trắng nhằm tạo nên một không gian tiếp đón khách khứa và bạn bè sang trọng, tinh tế.

Nhà phố hiện đại 6x18m sở hữu căn bếp hình chữ L, ôm sát lấy tường nhằm tiết kiệm diện tích. Khoảng cách từ bếp đến bàn ăn cách khoảng 1m, vừa đủ để người nội trợ dễ dàng bày trí các món ăn đồng thời các thành viên vẫn có thể di chuyển vào bàn mà không va phải người khác.

Việc đưa ánh sáng vào trong ngôi nhà cũng được nhóm thiết kế cân nhắc rất kỹ lưỡng. Gần như các phòng trong công trình luôn có ít nhất một góc nhìn thấy ánh sáng nhằm tiết kiệm điện năng.

Không gian của cậu con trai cả luôn được đảm bảo riêng tư và không bị phiền


Ban công chủ yếu thiết kế để đón thoáng, cũng như dòng vượng khí để luân chuyển lưu thông cho các không gian khác trong nhà. Một chiếc ghế đơn và ghế sofa dài dùng để các thành viên ngồi đọc sách, ngắm cảnh.
Nếu bạn đang lên kế hoạch với một dự định tìm cho các dự án sắp đến của mình một đơn vị thi công nội thất uy tín và chất lượng nhất? Bạn đang tìm hiểu về các loại vật liệu nên sử dụng hiện nay? Bạn đang băn khoăn chưa tìm được đơn vị thiết kế thi công nội thất tại Lào Cai Sa pa nào chuyên nghiệp? NHADEPLAOCAI.COM sẽ là lựa chọn chất lượng cho công trình dự án của Bạn. Chúng tôi tự hào mang lại cho quý khách hàng dịch vụ thiết kế thi công nội thất chuyên nghiệp nhất, cam kết mang lại tính thẩm mỹ, công năng sử dựng và mức giá tiền cạnh tranh trên thị trường.
Hãy liên hệ ngay với Minh Tâm LÀO CAI để cùng đồng hành và trải nghiệm về dịch vụ của Công ty chuyên thi công nội thất tại Lào Cai giá cạnh tranh. Cùng chúng tôi mang lại sự đổi mới cho không gian nội thất các dự án của bạn.
NHÀ ĐẸP MINH TÂM LÀO CAI





