nội thất nhà tân cổ điển 4 tầng có 4 phòng ngủ tại Lào Cai
Liên hệ
Với tình trạng “đất chật người đông” như hiện nay thì việc xây nhà ống được xem là phương án tối ưu được nhiều gia đình lựa chọn. Tuy nhiên bên cạnh những mẫu nhà ống hiện đại, xu hướng xây nhà ống tân cổ điển 4 tầng như công trình dưới đây cũng là một trong những lựa chọn khá tốt.
Với hình khối kiến trúc sang trọng, độc đáo cùng cách bố trí nội thất hợp lý, thông mình phương án thiết kế nhà tân cổ điển 4 tầng được nhiều người ngưỡng mộ. Sau đây hãy cùng chúng tôi tham khảo, để có thêm ý tưởng cho công trình của gia đình mình nhé!
Phối cảnh kiến trúc nhà ống tân cổ điển 4 tầng đẹp:
Thiết kế nhà ống 4 tầng được kiến trúc sư thể hiện qua những đường nét hình khối tinh tế, sang trọng và cuốn hút. Mẫu thiết kế nhà được kiến trúc sư thiết kế và triển khai phương án thi công
Với mặt tiền rộng 5m, kiến trúc sư đã tập trung khai thác hết những đường nét của kiến trúc tân cổ điển thông qua hệ hoa văn, phù điêu trang trí. Mặt tiền tầng 1 được ốp đá màu vàng vừa thể hiện sự trang trọng đồng thời giúp cho mẫu nhà phố không bị rêu mốc và bụi bẩn tấn công.
Lối vào chính trong căn nhà được làm từ gỗ, khung kính cho phép ánh sáng đi vào trong. Một lớp màn cửa đảm bảo cho không gian bên trong không bị nóng khi ánh mặt trời lên cao.

nhà ống tân cổ điển 4 tầng
Đường ron kẻ chỉ chạy dài theo suốt căn biệt thự từ tầng 2 lên đến tầng 3 tạo ra sự đăng đối và hài hòa. Trước mặt tiền, các khoảng ban công rộng được xây giật lùi vào trong để chủ nhà có thể trồng hoa hoặc những loại hoa leo giàn trên tường, vừa che mát vừa giúp không gian thêm đẹp và ấn tượng hơn.
Lan can trên các tầng nhà ống tân cổ điển 4 tầng được làm bằng sắt mỹ nghệ, đã qua xử lý để chống gỉ sét và tăng tuổi thọ cho công trình nhà ống 4 tầng.
Phần mái phía trước đắp phù điêu để tăng yếu tố thẫm mỹ trong khi bên trong kiến trúc sư tiến hành đổ mái bằng bê tông, tạo mặt tiếp xúc để đặt bồn nước, tấm pin năng lượng mặt trời, trồng cây….

Hệ thống đèn led bố trí dưới ban công các tầng nhằm làm tăng yếu tố thẫm mỹ đồng thời giúp nhà phố tân cổ điển nổi bật hơn so với những công trình xung quanh.
Với phối cảnh thiết kế khoa học, độc đáo này, chủ đầu tư hoàn toàn đồng ý với phương án thiết kế mà kiến trúc sư đưa ra ngay trong lần đưa phương án đầu tiên.
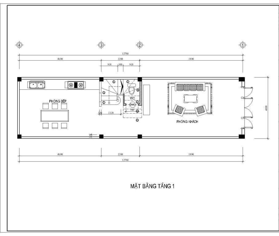
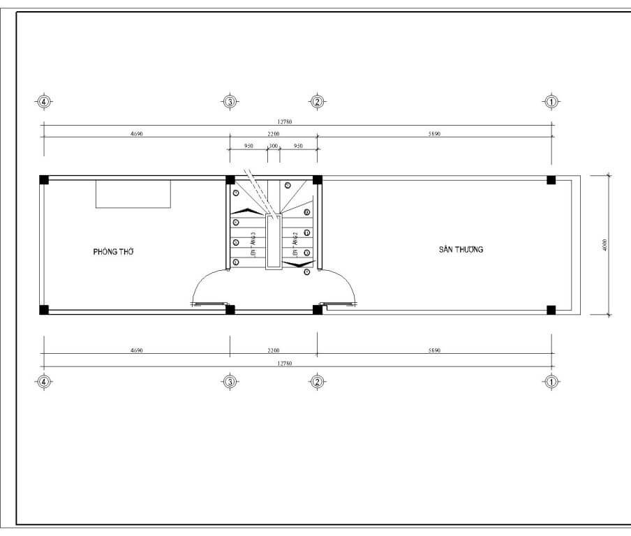
Mặt bằng công năng nhà ống tân cổ điển 4 tầng
Sau khi hoàn thành phần không gian kiến trúc bên ngoài, các kiến trúc sư nhanh chóng triển khai lên ý tưởng bố trí mặt bằng công năng bên trong để gửi cho chủ nhà. Dưới đây là sơ đồ bố trí đã được gia chủ chấp nhận.


- Tại tầng 1 kiến trúc sư bố trí một phòng khách, đặt ngay sau cửa chính để tiếp đón bạn bè và đối tác đến chơi. Cầu thang nằm ở trung tâm nhà 4 tầng đẹp, cùng sảnh nghỉ ở giữa tạo độ thoáng cho khu vực tầng 1.
- Phía trong cùng là bếp nấu và bàn ăn. Khu vực bàn ăn rộng để chủ nhà mời bạn bè và người thân ở lại dùng bữa.


- Tầng 2 gồm: Phòng ngủ 1 dành cho bố mẹ và phòng ngủ 2 dành cho cô con gái lớn.Mỗi phòng đều có nhà vệ sinh và ban công riêng thực sự thông thoáng.


Tầng 3 có cách sắp xếp như tầng 2 nhưng màu sắc và cách chọn nội thất hơi khác, tùy theo sở thích của người sở hữu.

- Tầng tum trên cùng được dành làm phòng thờ và sân thượng để chủ nhà thư giãn và giải trí
Hình ảnh nội thất bên trong nhà ống tân cổ điển 4 tầng:

Thiết kế phòng khách sang trọng, với bộ bàn ghế sofa bọc nệm màu trắng giúp kéo dài thời gian trò chuyện giữa khách và chủ. Phía trên kệ tivi được chủ nhà tận dụng để đặt bàn thờ gia tiên, thể hiện niềm tôn kính của chủ nhà với ông bà.

Trần phòng khách nhà phố ốp gỗ, chạm trổ tinh tế thể hiện đẳng cấp và gu thẫm mỹ cho gia chủ.

Khung cửa sổ rộng cùng sàn nhà ốp đá màu trắng tăng cường khả năng lấy sáng cho nhà ống tân cổ điển 4 tầng.

Bộ bàn ghế ăn làm từ gỗ tự nhiên sang trọng. Ghế ăn bọc nệm để các thành viên trong gia đình có thể ngồi lại bên nhau lâu hơn.



Tầng 2 không thiết kế phòng ngủ master khá lớn. Trong đó kiến trúc sư đặt một chiếc giường ngủ ở trung tâm, những món đồ nội thất khác sẽ lấy đó mà bố trí xung quanh.

Thiết kế phòng thay đồ sang trọng, ngăn nắp, đem đến không gian kiến trúc hiện đại, tạo cảm hứng cho cuộc sống.



Một phòng ngủ khác thiết kế hướng ban công trước và sử dụng nhà vệ sinh chung, được thiết kế ngay bên cạnh, gần với khu tiểu cảnh và sảnh thang thông tần
Bạn đang lên kế hoạch với một dự định tìm cho các dự án sắp đến của mình một đơn vị thi công nội thất uy tín và chất lượng nhất? Bạn đang tìm hiểu về các loại vật liệu nên sử dụng hiện nay? Bạn đang băn khoăn chưa tìm được đơn vị thiết kế thi công nội thất tại Lào Cai Sa pa nào chuyên nghiệp? NHADEPLAOCAI.COM sẽ là lựa chọn chất lượng cho công trình dự án của Bạn. Chúng tôi tự hào mang lại cho quý khách hàng dịch vụ thiết kế thi công nội thất chuyên nghiệp nhất, cam kết mang lại tính thẩm mỹ, công năng sử dựng và mức giá tiền cạnh tranh trên thị trường.
Hãy liên hệ ngay với Minh Tâm LÀO CAI để cùng đồng hành và trải nghiệm về dịch vụ của Công ty chuyên thi công nội thất tại Lào Cai giá cạnh tranh. Cùng chúng tôi mang lại sự đổi mới cho không gian nội thất các dự án của bạn.
NHÀ ĐẸP MINH TÂM LÀO CAI
Tư vấn - thiết kế - thi công nội thất
Hotline: 0214 628 5555 or 09 1889 3998
Địa Chỉ: số 26 Bùi Đức Minh , Kđt Bitexco, P.Bắc Cường, TP.Lào Cai
Fanpage: nội thất Minh Tâm Lào Cai






